20/07/2024
Job runner for retail unit renovation. Building fabric upgraded to meet current standards in £1.3m redevelopment
Existing structural frame was retained and shell renovated
Integral part of team responsible for implementing Fresh Look upgrade across Wm Morrison Estate in Scotland and North East of England. Typical project value £3m
Chaired phasing meetings to ensure departments remained open for trade during refurbishment
Prepared design proposal and construction drawings using REVIT
Completed sub-division
Project architect for £3m extension to existing supermarket. Supermarket remained open for trade for duration of works. Rainscreen cladding used to integrate existing building and extension.
Responsible for design of extension to accommodate new food preparation areas
Project architect for £1.5m extension to existing supermarket to accommodate new cafe. Responsible for integration of cafe interior design and coordination of services for kitchen fitments
Project architect for conversion of shop unit to restaurant in Victorian building
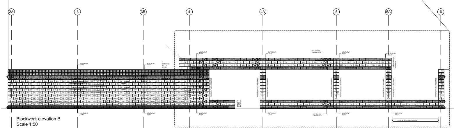
Project architect for £2.5m extension to existing supermarket. Design options for elevations below.
Project architect for £1.5m sales floor extension to existing supermarket. Store remained trading throughout works with minimal disruption to trade.
Team leader for 2.8m fire damage reinstatement works undertaken at food production facility. Insurers expressed appreciation at speed at which project was completed and production resumed.
Interior design study for studio apartment
















