03/08/2024

Sub-contractor co-ordination

Sub-contractor co-ordination
Sub-contractor co-ordination

Service co-ordination - get all your ducts in a row

Petrol filling station Wm Morrison Kirkcaldy

Service co-ordination - get all your ducts in a row

Securing Building Warrant approval

Securing Building Warrant approval

Purifying Planning conditions and preparing design and access statements

Purifying Planning conditions and preparing design and access statements

Preparing deed plans

Preparing deed plans

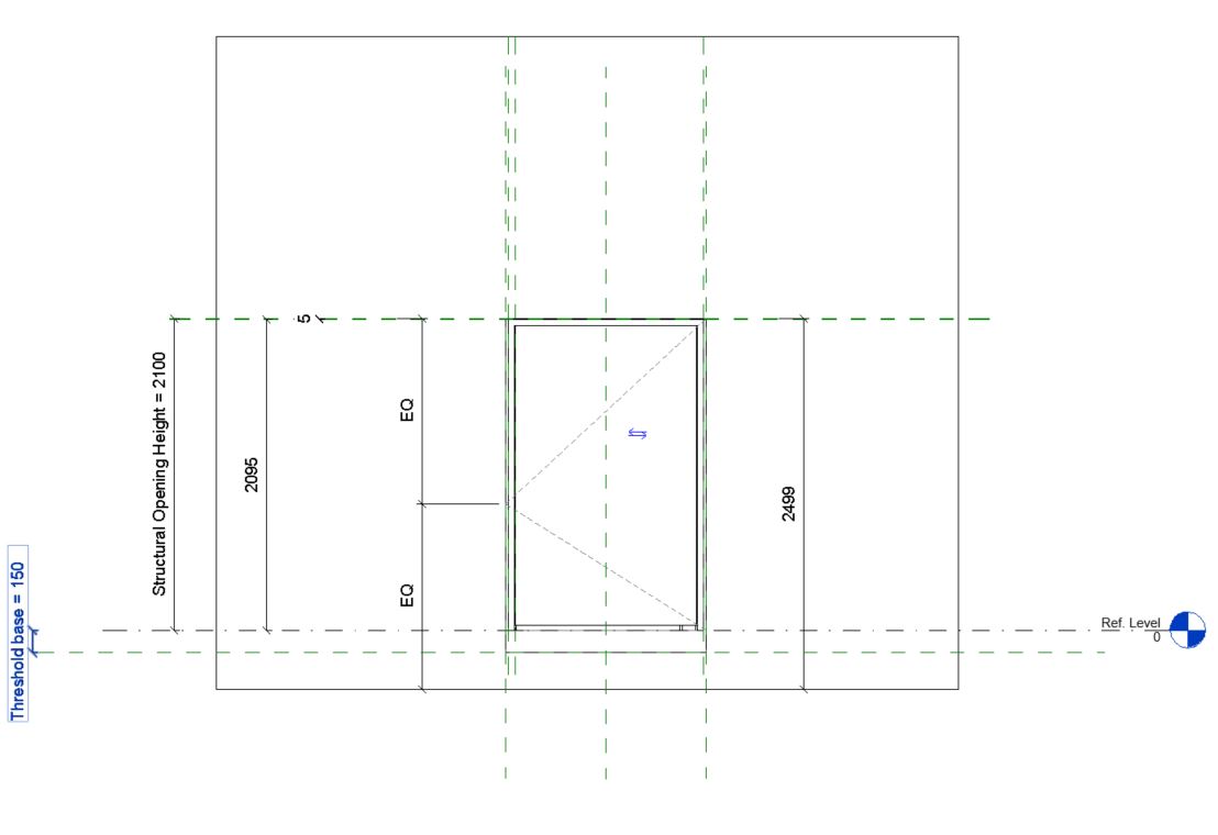
Revit user

Revit user
Revit user

Consultant liaison and co-ordination - Team work makes the beam work

Consultant liaison and co-ordination - Team work makes the beam work

Knowledge of historic building conservation issues

with specialist interest in Post War Scottish architecture and concrete conservation

Knowledge of historic building conservation issues

Preparing specifications using NBS Chorus

Preparing specifications using NBS Chorus

Track record of working under pressure and meeting deadlines

Track record of working under pressure and meeting deadlines

Experience of working with utility companies

Experience of working with utility companies

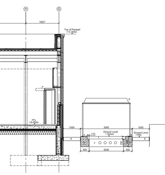
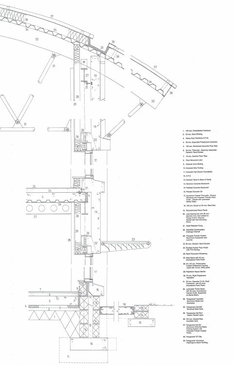
Detail design

Detail design

Construction drawings

Construction drawings

Twinmotion

Twinmotion rendering of Revit model

Twinmotion
Twinmotion
Twinmotion